top of page
Blueprints
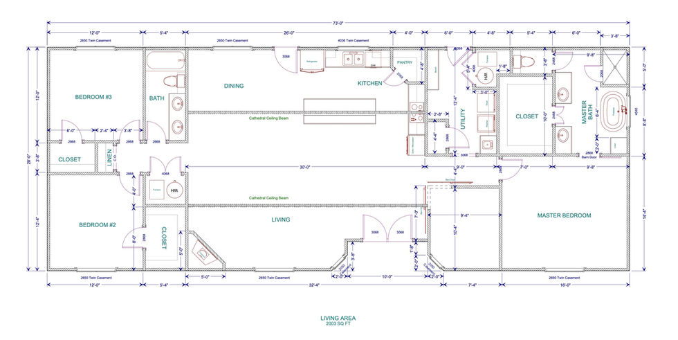
Bob's is completely custom, which means you have several options when it comes to blueprints. You can choose a blueprint from our many previous projects and make changes, or bring your own blueprint to us.

bottom of page










